Loading...
Body Repairs - Tolerance Checks
Point to Point Dimensional Information
Point to point measurements are actual distances between two points. These points can be holes or intersections points. Where holes are taken, the point of measurement is always from the hole centres.
Measurements shown are in millimetres and inches. The measurements in brackets are in inches.
Front end dimensions
| Item | From | To | Length |
| A | Hood latch panel, lower LH outer fixing | Hood latch panel, lower RH outer fixing | 1503.2 (59.18) |
| B | Hood latch panel, LH locator slot | Hood latch panel, RH locator slot | 900 (35.43) |
| C | Hood latch panel, LH locator dowel | Hood latch panel, RH locator dowels | 1540.4 (60.64) |
| D | Fender, front LH fixing | Fender, front RH fixing | 1617.8 (63.69) |
| E | Fender, rear LH fixing | Fender, front RH fixing | 1780.3 (70.09) |
| F | Fender, rear LH fixing | Fender, rear RH fixing | 1620 (63.77) |
| G | Fender, front fixing | Hood latch panel, locator dowel | 114.4 (4.5) |
Front end dimensions
| Item | From | To | Length |
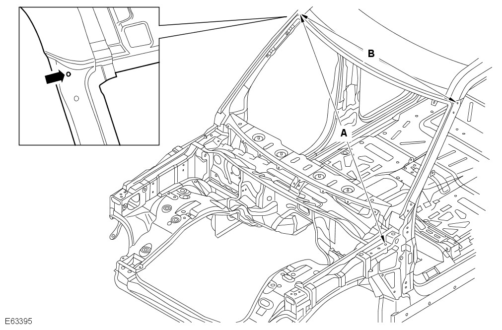
| A | LH hood hinge, rear fixing hole | RH windshield side upper finisher, fixing hole | 1820.1 (71.65) |
| B | LH windshield side upper finisher, fixing hole | RH windshield side upper finisher, fixing hole | 1420.4 (55.92) |
Side view dimensions
| Item | From | To | Length |
| A | Front door top hinge, top fixing hole | Rear door top hinge, top fixing hole | 1078.9 (42.47) |
| B | Front door top hinge, top fixing hole | Rear door bottom hinge, top fixing hole | 1138.3 (44.81) |
| C | Front door bottom hinge, top fixing hole | Rear door top hinge, top fixing hole | 1174.5 (46.24) |
| D | Front door bottom hinge, top fixing hole | Rear door bottom hinge, top fixing hole | 1078.9 (42.47) |
| E | Rear door top hinge, top fixing hole | D pillar striker top fixing hole | 924.0 (36.38) |
| F | Rear door bottom hinge, top fixing hole | D pillar striker top fixing hole | 1017.9 (40.07) |
Internal dimensions
| Item | From | To | Length |
| A | LH safety belt anchorage, top fixing hole | RH safety belt retractor, lower fixing hole | 1731.0 (68.15) |
| B | RH safety belt anchorage lower fixing | LH safety belt anchorage lower fixing | 1117.6 (44.00) |
Rear view dimensions
| Item | From | To | Length |
| A | LH upper trim panel, fixing hole | RH upper trim panel, fixing hole | 1217.0 (47.91) |
| B | Liftgate, LH hinge cover, fixing hole | Liftgate, striker LH fixing hole | 1186.6 (46.71) |
Underbody Dimensional Information
Front integral body frame dimensions
| Item | From | To | Length |
| A | Body Mount 1 (front) | Body Mount 3 | 2113 (83.12) |
| B | Body Mount 1 (front) | Body Mount 2 | 1139 (44.84) |
| C | Body Mount 3 (LH) | Body Mount 3 (RH) | 1275 (50.196) |
| D | Body Mount 1 (LH front) | Body Mount 1 (RH front) | 1015 (39.96) |
| E | Body Mount 2 (LH) | Body Mount 2 (RH) | 1258 (49.53) |
| F | Body mount 3 | Datum line Z | 136.5 (5.37) |
| G | Body mount 2 | Datum line Z | 105.5 (4.15) |
| H | Body mount 1 | Datum line Z | 78.8 (3.10) |
Front integral body frame dimensions
| Item | From | To | Length |
| A | Body Mount 1 (LH front) | Damper Mounting (RH) | 1063.1 (41.85) |
| B | Body Mount 1 (LH front) | Body Mount 2 (RH) | 1609 (63.34) |
| C | Body Mount 1 (LH front) | Body Mount 3 (RH) | 2403.3 (94.61) |
| D | Body Mount 2 (LH front) | Body Mount 3 (RH) | 1597.7 (62.90) |
| E | Body Mount 1 (LH front) | Body Mount 2 (RH) | 1164.63 (45.85) |
Front integral body frame dimensions
| Item | From | To | Length |
| A | Front Bumper Mount (L/H) | Front Bumper Mount (R/H) | 740 (29.13) |
| B | Cooling Pack Mount (LH) | Cooling Pack Mount (RH) | 810 (31.8) |
| C | Lower Arm Front Mount (LH front) | Lower Arm Front Mount (RH front) | 635.7 (25.02) |
| D | Steering Gear (LH) | Steering Gear (RH) | 520 (20.4) |
| E | Upper Arm Front Mount (LH front) | Upper Arm Front Mount (RH front) | 748.7 (29.47) |
| F | Upper Arm Rear Mount (LH front) | Upper Arm Rear Mount (RH front) | 836.8 (32.9) |
| G | Lower Arm Rear Mount (LH front) | Lower Arm Rear Mount (RH front) | 678.6 (26.71) |
Front integral body frame dimensions
| Item | From | To | Length |
| A | Datum Line (Z) | Cooling Pack Mount | 78.8 (3.10) |
| B | Datum Line (Z) | Lower Arm Front Mount (front) | 249.2 (9.81) |
| C | Datum Line (Z) | Steering Gear | 209.6 (8.25) |
| D | Datum Line (Z) | Upper Arm Front | 169.6 (6.68) |
| E | Datum Line (Z) | Upper Arm Rear | 133.7 (5.26) |
| F | Datum Line (Z) | Lower Arm Rear Mount (front) | 243.5 (9.58) |
Rear integral body frame dimensions
| Item | From | To | Length |
| A | Body Mount 4 (LH) | Body Mount 4 (RH) | 806 (31.732) |
| B | Body Mount 5 ( rear) | Damper Mounting | 533.5 (21.00) |
| C | Body Mount 5 ( rear)
| Body Mount 4 | 882.8 (34.755) |
| D | Body Mount 5 (LH rear) | Body Mount 5 (RH rear) | 1114 (43.858) |
| E | Body Mount 5 ( rear) | Rear Crossmember | 332 (13.07) |
| F | Body Mount 5 | Datum line Z | 127.5 (5.02) |
| G | Body Mount 4 | Datum line Z | 61.2 (2.41) |
Rear integral body frame dimensions
| Item | From | To | Length |
| A | Body Mount 5 (LH rear) | Body Mount 4 (RH) | 1304.2 (51.34) |
| B | Body Mount 5 (LH rear) | Rear Damper Mounting (RH) | 1156 (45.51) |
| C | Body Mount 5 (LH rear) | Rear Damper Mounting (LH) | 540.7 (21.29) |
Rear integral body frame dimensions
| Item | From | To | Length |
| A | Damper (LH) | Damper (RH) | 937.1 (36.9) |
| B | Upper Arm Rear Mount (LH front) | Upper Arm Rear Mount (RH front) | 757.4 (29.81) |
| C | Lower Arm Front Mount (LH front) | Lower Arm Front Mount (RH front) | 881.6 (34.7) |
| D | Upper Arm Front Mount (LH front) | Upper Arm Front Mount (RH front) | 946.5 (37.26) |
| E | Toe Link (LH) | Toe Link (RH) | 339.8 (13.38) |
| F | Lower Arm Rear Mount (LH front) | Lower Arm Rear Mount (RH front) | 564.8 (22.24) |
Rear integral body frame dimensions
| Item | From | To | Length |
| A | Datum Line (Z) | Damper | 153 (6.02) |
| B | Datum Line (Z) | Upper Arm Rear Mount (front) | 18.3 (0.72) |
| C | Datum Line (Z) | Lower Arm Front Mount (front) | 162.1 (6.38) |
| D | Datum Line (Z) | Upper Arm Front Mount (front) | 54.7 (2.15) |
| E | Datum Line (Z) | Toe Link | 206.5 (8.13) |
| F | Datum Line (Z) | Lower Arm Rear Mount (front) | 251.5 (9.90) |
Body Shell Replacement Times
NOTES:
-
The following information shows the total time taken to replace a vehicles body shell. The time has been calculated using a base model variant. For example a two wheel drive vehicle without a roof opening panel.
-
The times include all mechanical, electrical and trim (MET) items but do not include wheel alignment or paint times.
| Vehicle Variant | Time |
| Range Rover Sport | 73 |
Gap and Profile Measurements
The following information is to be used as a guide to assist the technician in installing exterior body panels and trim items so as to achieve a correctly aligned and cosmetically acceptable vehicle.
Measurements shown are in millimetres and inches. The measurements shown in brackets are in inches.
Front view dimensions
| Section | Description | Gap | Profile |
| A-A | Headlamp to Hood | 22.0 (0.866) ± 1.4 (0.055) | N/A |
| B-B | Headlamp to Bumper | 5.0 (0.197) ± 1.8 (0.070) | N/A |
| C-C | Headlamp to Fender | 3.0 (0.118) ± 1.2 (0.0472) | 0.0 ± 1.2 (0.047) |
| D-D | Headlamp to Grille | 4.0 (0.157) ± 1.2 (0.0472) | 0.0 ± 1.0 (0.039) |
Side view dimensions
| Section | Description | Gap | Profile |
| E-E | Hood to Fender | 22.0 (0.866) ± 1.4 (0.055) | + 1.0 (0.039) |
| F-F | Rear Door to Bodyside | 5.0 (0.196) ± 1.0 (0.039) | 0.0 + 0.0 - 1.0 (0.039) |
| G-G | Front Door to Rear Door | 5.0 (0.196) ± 1.0 (0.039) | 0.0 + 0.0 - 1.4 (0.055) |
| H-H | Front Fender to Front Door | 5.0 (0.196) ± 1.0 (0.039) | 0.0 + 0.0 - 1.0 (0.039) |
| X-X | Fuel Filler Flap to Bodyside | 2.9 (0.114) ± 1.0 (0.039) | 1.0 (0.039) ± 1.0 (0.039) |
Rear view dimensions
| Section | Description | Gap | Profile |
| L-L | Roof to Spoiler | 10.0 (0.393) ± 1.0 (0.039) | 2.0 (0.079) ± 1.5 (0.059) |
| M-M | Liftgate to Rear Lamp | 5.0 (0.196) ± 1.4 (0.055) | 1.5 (0.059) ± 1.2 (0.047) |
| N-N | Liftgate to Bumper | 7.0 (0.276) ± 2.0 (0.079) | N/A |